增碳剂破碎提升筛分输送整线 更新时间:2025-12-31 点击次数:101次
在钢铁产品的冶炼过程中,常常会因为冶炼时间、保温时间、过热时间较长等因素,使得铁液中碳元素的熔炼损耗量增大,造成铁液中的含碳量有所降低,导致铁液中的含碳量达不到炼制预期的理论值。为了补足钢铁熔炼过程中烧损的碳含量而添加的含碳类物质称之为增碳剂。
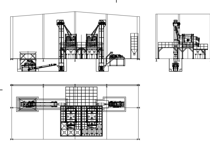
使用机型:破碎-提升-平台-筛分-包装

上一条: 硅碳负极真空上料筛分磁选生产线
下一条: 石油压裂支撑烘干筛分生产整线





